552 Reed Avenue, Versailles, OH 45380
- 2 beds |
- 2 baths
Condominium
Built in 2025
5,968sqft lot
3 car garage
$——/sqft
Listed 1 year ago
Property Description
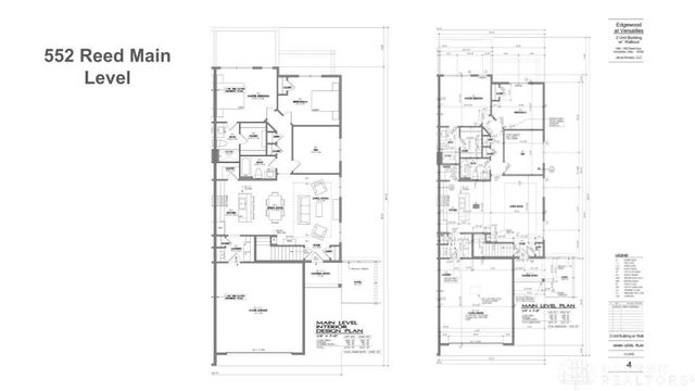
Experience the tranquility of small-town living in Edgewood at Versailles. This 2699 sq. ft. home consist of 1453 sq. ft. of finished main living as well as 1246 sq ft unfinished walkout basement, ready for you to make your own. Home features include front and rear patios for outdoor relaxation, a well-equipped kitchen and pantry for your culinary adventures, a dining area for entertaining, and a comfortable living room for unwinding. With two bedrooms and two bathrooms, this floorplan offers ample space as well as a 3 car garage. Built by JEMS Homes, this stunning patio home will be a masterpiece of modern design with its new construction, high-quality finishes, and high-efficiency features.
- Listing Status:
- Pending
- Date Added:
- March 6, 2025
- Data Last Updated:
- April 4, 2026 at 3:18AM
- Listing Office:
- EB Real Estate : (937) 548-4663
- Listing Agent:
- Eric M Brown : (937) 548-4663
- MLS ID:
- 929173

- General: Ceiling Fan(s)High Speed InternetKitchen IslandKitchen/Family Room ComboQuartz CountersSolid Surface CountersVaulted Ceiling(s)Walk-In Closet(s)
- Appliances: DishwasherDisposalMicrowaveRangeRefrigeratorGas Water Heater
- Basement: PartialUnfinishedWalk-Out Access
- A/C: Central Air
- Heating: Forced AirNatural Gas
- General: FencePorchPatio
- Other Structures: PorchPatio
- Parking: AttachedGarageGarage Door OpenerStorage
- Windows: Casement Window(s)Double Pane WindowsInsulated WindowsVinyl
- General: FrameStoneStucco1
- HOA Amenities: 150.0Monthly
- Originating MLS: DAYTON_DABR
- School District: Versailles
- County: Darke
- Zoning: ResidentialEDGEWOOD AT VERSAILLES PHASE 2WHOLE LOT 1042T76241019030119700
- Fencing: Partial
- Utilities: Natural Gas AvailableSewer AvailableWater Available
- Water: Public
- Sewer: Storm Sewer
- Source: DAYTON_DABR
This listing courtesy of Eric M Brown , EB Real Estate
Monthly Payment
- Principal & Interest $
- Property Taxes $
- Home Insurance $
- VA Funding Fee $
Location
Schools Nearby
Versailles Middle School
280 Marker Rd, Versailles, OH, 45380
Grades 5-8
0.41 miles away
Versailles Middle School
280 Marker Rd, Versailles, OH, 45380
Grades 5-8
0.41 miles away
Versailles High School
280 Marker Rd, Versailles, OH, 45380
Grades 9-12
0.41 miles away

